Homes
Site Map
Specifications
Location
Price List
Enquire Now
More Past Projects
New Build Hub
Homes
Site Map
Specifications
Location
Price List
Enquire Now
More Past Projects
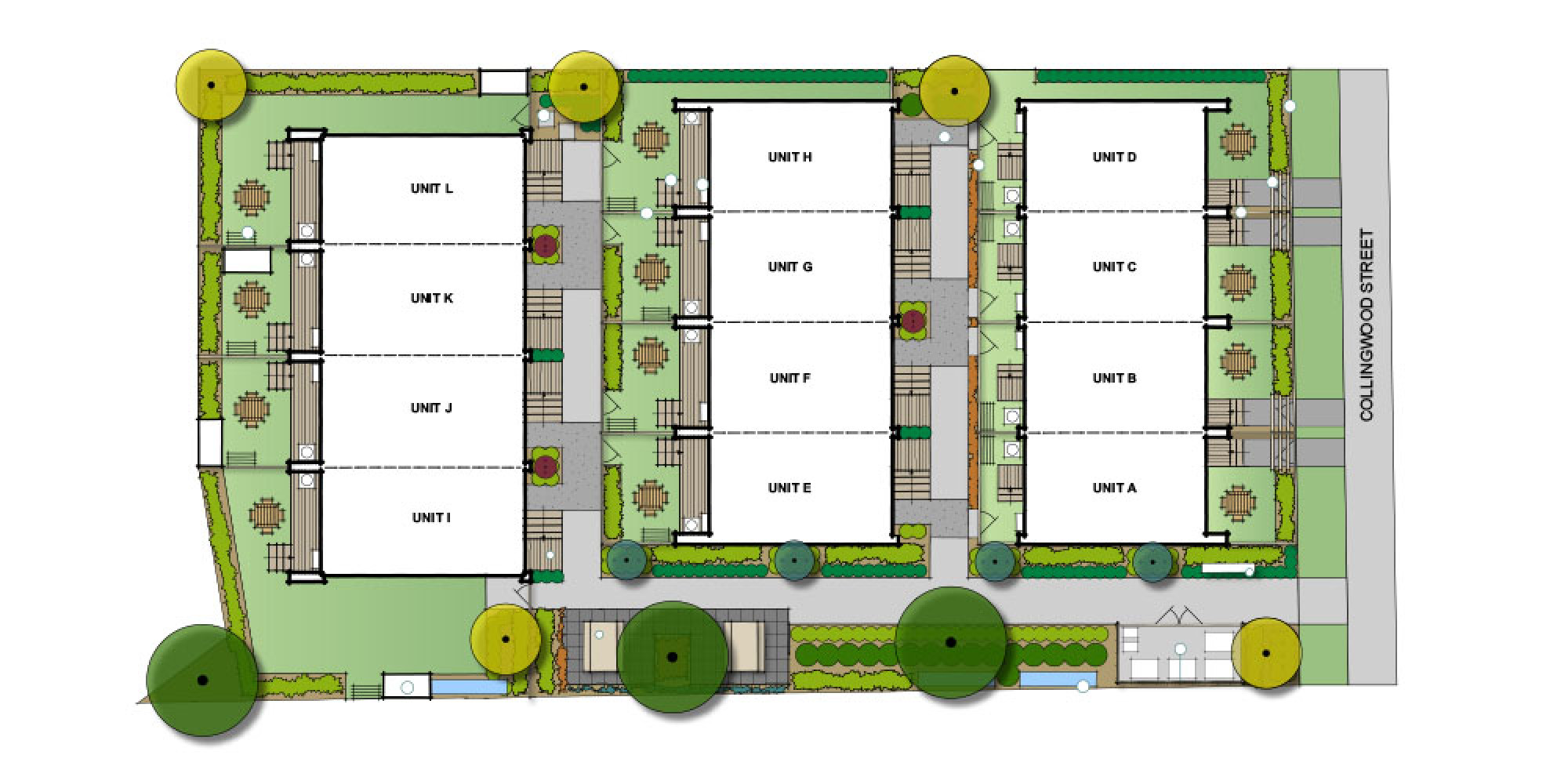
Site Map
Plans
Register Interest
You must enable JavaScript to submit this form
Submit
Submit
Chat with us
, powered by
LiveChat