Plans
At a glance
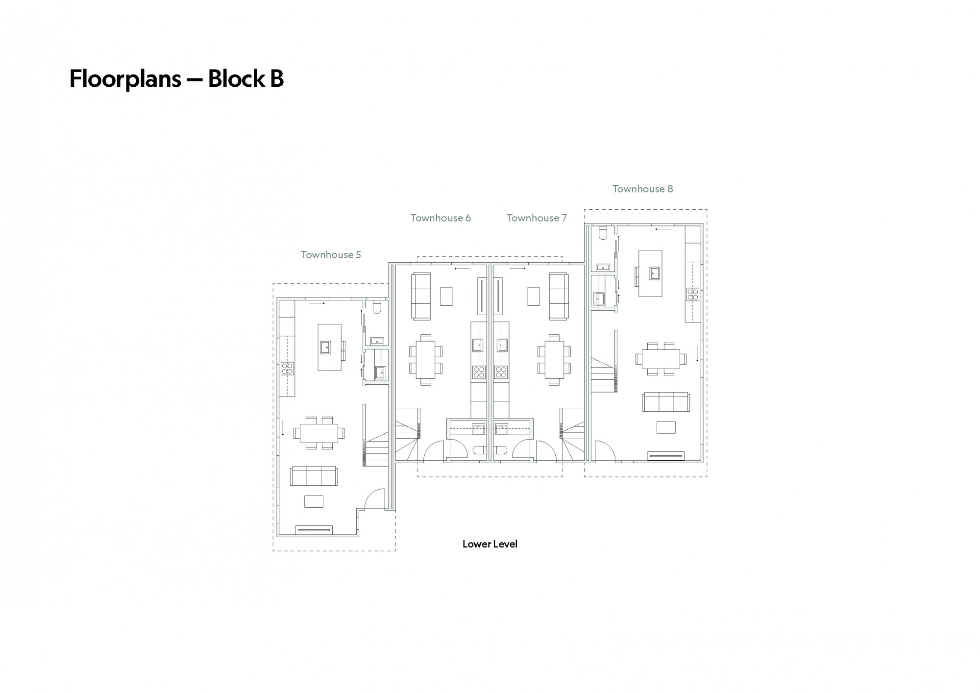
A total of 8 townhouses across four blocks.
8 x 1-bedroom dual keys apartments
2 x 2-bedroom townhouses
2 x 3-bedroom townhouses
• Open plan design with an outdoor entertainment space
• High quality finishes and appliances
• Walking distance from main bus and train routes
• Walking distance from local shops & cafes
• Easy access to local parks and playgrounds
• Clean, modern claddings and colour scheme
• Integrated laundry package
• Easy-care living
• Guest WC for all townhouses
• Above code specification for insulation
• Fireproof (60min burn time) & soundproofing offers exceptional isolation between townhouses
• 12 month replacement guarantee on landscape planting
